SR IMMO
20, Grand-Rue
9410 Vianden
Luxembourg
  26634433

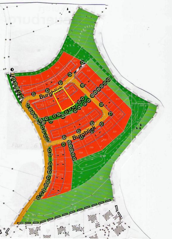
Terrain constructible à vendre à Neuerburg

  • Référence : 100157
  • Type : Terrain constructible
  • Superficie terrain : +/- 844 m2
  • Localisation : Neuerburg
  • Prix de vente : 45 154 €
  • Disponibilité : 01/01/1970
  • Honoraires d’agence : 3,57 % inkl. MwSt. vom Kaufpreis
  • Type de mandat : Exclusif
  • Classe énergétique : N_C N_C
  • Emission de gaz à effet de serre (GES) : 
    N_C

Description

Herrliches Grundstück mit Fernblick ins Tal und auf die umliegenden Berge zu äußerst günstigem Preis. Voll erschlossen. Kein Bauvertrag. Auf Wunsch können wir Ihnen gerne in Zusammenarbeit mit unserer erstklassigen Partner-Baufirma bei der Gesaltung Ihres Hauses behilflich sein. Lagebeschreibung Die Stadt Neuerburg liegt nahe der luxemburgischen Grenze in der Südeifel (Vianden ca. 17 km). Das Neuerburger Land gehört zum Deutsch-Luxemburgischen Naturpark und ist über die B 50 und B 410 erschlossen. Die A 60 Richtung Belgien, Köln und Koblenz ist in ca. 20 Minuten erreichbar. Bauen in Neuerburg bedeutet: sehr günstige Grundstückspreise, hohe Lebensqualität, gute Infrastruktur durch komplettes Schulangebot, Kindertagesstätte, Krankenhaus, Altenpflege; ausgezeichnete Einkaufsmöglichkeiten in Fachgeschäften und Discountern, zahlreiche kompetente Handwerksbetriebe; reges Vereinsleben; naturnahes Wohnen mit hohem Freizeitwert. HAFTUNGSAUSSCHLUSS Die von uns gemachten Angaben hinsichtlich Größen und Beschaffenheit des Objektes beruhen auf Informationen des Verkäufers bzw. Dritter und sind unverbindlich. Eine Haftung jeglicher Art für die Richtigkeit und Vollständigkeit der Angaben wird daher ausgeschlossen. Unser Angebot erfolgt freibleibend, Zwischenverkauf vorbehalten. VERBRAUCHERINFO 1. Maklerleistung ist der Nachweis der Gelegenheit zum Abschluss eines Vertrages bzw. Vermittlung eines Vertrages über eine Immobilie gegen die Maklerlohnzahlungspflicht des Kunden. Eine Maklerprovision in Höhe von 3,57 % incl. 19 % MwSt. ist vom Käufer zu zahlen. Die Maklerprovision ist fällig und verdient mit Unterzeichnung des Kaufvertrages. 2. Unternehmer, Anschrift, Beschwerdeadressat: ARCADIA Fine Properties S.A., 20, Grand-Rue, L-9410 Vianden, Tel.: 00352 266 344 1, Email: contact@sri.lu, Direktor: Ton Eggen 3. Es besteht ein Widerrufsrecht für Verbraucher WIDERRUFSRECHT FÜR VERBRAUCHER Sie haben das Recht, binnen vierzehn Tagen ohne Angabe von Gründen diesen Vertrag zu widerrufen. Die Widerrufsfrist beträgt vierzehn Tage ab dem Tag des Vertragsabschlusses. Um Ihr Widerrufsrecht auszuüben, müssen Sie uns (ARCADIA Fine Properties S.A., 20, Grand-Rue, L-9410 Vianden, Tel: 352 266 344 33, Fax: 352 266 344 44, E-Mail: contact@sri.lu) mittels einer eindeutigen Erklärung (z. B. ein mit der Post versandter Brief, Telefax oder E-Mail) über Ihren Entschluss, diesen Vertrag zu widerrufen, informieren. Sie können dafür das beigefügte Muster-Widerrufsformular verwenden, das jedoch nicht vorgeschrieben ist. Zur Wahrung der Widerrufsfrist reicht es aus, dass Sie die Mitteilung über die Ausübung des Widerrufsrechts vor Ablauf der Widerrufsfrist absenden. Folgen des Widerrufs Wenn Sie diesen Vertrag widerrufen, haben wir Ihnen alle Zahlungen, die wir von Ihnen erhalten haben, einschließlich der Lieferkosten (mit Ausnahme der zusätzlichen Kosten, die sich daraus ergeben, dass Sie eine andere Art der Lieferung als die von uns angebotene, günstigste Standardlieferung gewählt haben), unverzüglich und spätestens binnen vierzehn Tagen ab dem Tag, an dem die Mitteilung über Ihren Widerruf dieses Vertrags bei uns eingegangen ist. Für diese Rückzahlung verwenden wir dasselbe Zahlungsmittel, das Sie bei der ursprünglichen Transaktion eingesetzt haben, es sei denn, mit Ihnen wurde ausdrücklich etwas anderes vereinbart; in keinem Fall werden Ihnen wegen dieser Rückzahlung Entgelte berechnet. Haben Sie verlangt, dass die Dienstleistungen während der Widerrufsfrist beginnen sollen, so haben Sie uns einen angemessenen Betrag zu zahlen, der dem Anteil der bis zu dem Zeitpunkt, zu dem Sie uns von der Ausübung des Widerrufsrechts hinsichtlich dieses Vertrags unterrichten, bereits erbrachten Dienstleistungen im Vergleich zum Gesamtumfang der im Vertrag vorgesehenen Dienstleistungen entspricht. Hinweis auf die Möglichkeit eines vorzeitigen Erlöschens des Widerrufsrechts Ihr Widerrufsrecht erlischt, wenn wir unsere Leistung vollständig erbracht und mit der Ausführung der Leistung erst begonnen haben, nachdem Sie Ihre ausdrückliche Zustimmung und gleichzeitig Ihre Kenntnis davon bestätigt haben, dass Sie Ihr Widerrufsrecht bei vollständiger Vertragserfüllung durch uns verlieren. MUSTER-WIDERRUFSFORMULAR Wenn Sie den Vertrag widerrufen wollen, dann füllen Sie bitte dieses Formular aus und senden Sie es zurück an: ARCADIA Fine Properties S.A. - SR IMMO 20, Grand-Rue L-9410 Vianden Tel: 352 266 344 33 Fax: 352 266 344 44 E-Mail: contact@sri.lu Hiermit widerrufe(n) ich/wir (*) den von mir/uns (*) abgeschlossenen Vertrag über den Kauf der folgenden Waren (*)/die Erbringung der folgenden Dienstleistung (*) Bestellt am (*)/erhalten am (*) Name des/der Verbraucher(s) Anschrift des/der Verbraucher(s) Unterschrift des/der Verbraucher(s) (nur bei Mitteilung auf Papier) Datum (*) Unzutreffendes streichen. Ref agence :100157

Caractéristiques

Sanitaires

Salles de doucheoui

Extérieur

Terrain844 m²

Localisation